ISO CLip: Thermal Isolation Clip
Increasingly stringent building codes coupled with rising energy costs has opened the market for new methods of effectively insulating buildings. The ISO Clip has been designed to meet these needs in an economical and user friendly design. The exterior appearance of the building façade is important but the effectiveness of the wall assembly is what will provide occupancy comfort and energy efficiency. Overuse of carbon heavy energy sources to maintain indoor temperatures are not only expensive but environmentally detrimental.
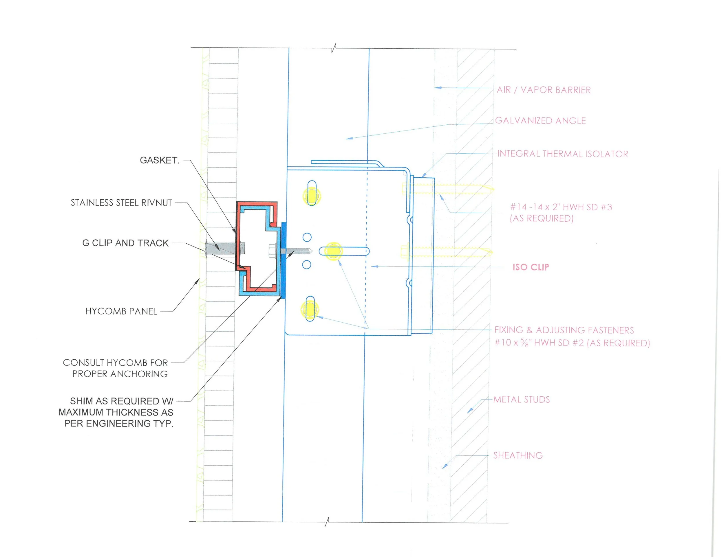
The ISO Clip is a thermal barrier separating the interior of the building from the exterior framing components. The ISO Clip is engineered to perform on all substrates; including concrete, concrete block, steel studs or wood. One Clip can accommodate a variety of insulation thicknesses or wall depths, eliminating the need for shims or multiple clips sizes. A Clip installed in the same orientation is suited to accept either vertical or horizontal sub-girts. Versatility and ease of use combined with the effective use of insulation makes the ISO Clip the product to specify.
Unique design features reduce the thermal transfer from the interior to the exterior. Thermal performance of the clip has been verified by the industry leaders, Morrison Hershfield.
The ISO Clip provides a thermally broken and intermittent structural attachment for cladding systems to exterior wall assemblies. The clip is fabricated from Z-275 galvanized steel, and molded over with a plastic isolator. Both horizontal and vertical steel girts can be attached to the ISO Clip, as shown in both images below. The horizontal flange of the clip has a punched slot that allows the sub girts to be adjusted and fastened to the clip. The plastic isolator between the metal clip and the wall provides a thermal break that reduces thermal bridging. For steel stud assemblies, the clips are fastened through the exterior sheathing directly to the steel studs using self-drilling/ tapping screws.
System Details
Benefits
3D Thermal Analysis for SB10 and ASHRAE 90.1 compliance by Morrison Hershfield.
FEA Structural Analysis by JEI Engineering.
Evaluated for NFPA 285.
Accommodates +/- ½” adjustment for wall deviation.
Fully Engineered.
System support teams available to assist.
Acceptable for multiple substrates.
Cost-effective.
Allows for horizontal and vertical installations.
One clip accommodates varying wall depths.
Shims not required.
Installer friendly
Currently approved for 4”, 5”, 6” of insulation.
Features
Girts can be pre-assembled to the ISO Clip for faster field installation.
One source purchasing for your clips, girts and fasteners
